若尔盖暖巢项目 | 2020 Active House Award总冠军奖
2020获奖作品解析
中国建筑西南设计研究院有限公司
总冠军奖
若尔盖暖巢项目

项目地址:阿坝藏羌族自治州若尔盖县下热尔村

设计团队合影
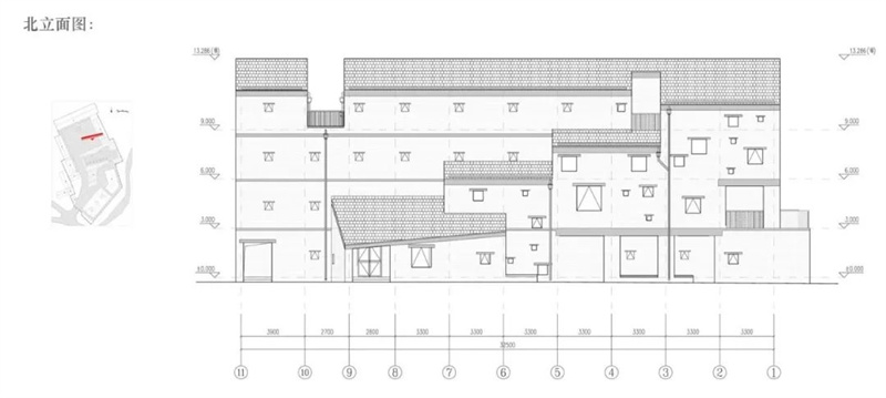
专家评语-冯正功:暖巢项目在技术层面上,选择主被动结合的高新技术路线,但同时兼顾了环境与成本。该项目基于高原高寒的特殊气候环境,运用建筑信息化模型和性能化模拟,理性选择并创造性地使用了零碳采暖技术改善建筑性能,提高建筑对藏区特殊气候的适应性,低成本、低造价、易维护地营造舒适学习环境。更为重要的是,设计理念尊重藏区传统,延续地域文化,主动式建筑设计不失人文温度。在简洁的现代建筑形体上,采用当地材料页岩,因地制宜减轻环境负荷;在空间色彩上,提取藏族传统色彩,点亮儿童活动空间。 阿坝藏族羌族自治州若尔盖县地处青藏高原东北边缘,位于四川省北部。若尔盖县享有“中国最美的高寒湿地草原”和“中国黑颈鹤之乡”的美誉。如此美景下却是恶劣的气候环境,高原、严寒、四季不明、冬长无夏...... 
01 主动性
ACTIVENESS 针对造价低廉、气候严酷、资源匮乏和三江源头的高环保要求等限制,以低造价,低能耗,易维护的设计策略开发了成套的被动式太阳能技术,实现了建筑采暖的零碳排放。 采用独创的南侧集热墙体系,经使用后实测,最冷月份主要房间室内外平均温差达23℃以上。项目在高原上用成套的解决方案对未来同类型的建筑设计提供了参考和示范。 开创性的南侧集热系统设计 若尔盖地区冬季拥有良好的太阳辐射,而夏季不需降温措施,属于利用太阳能的适宜区。因此我们首先将建筑规划为南北朝向,集热方式采用直接受益式、集热蓄热墙式结合,并实现热工性能昼夜可变。 建筑外围护结构采用重质墙体,80mm厚喷涂聚氨酯保温层,阻挡热量的散失。南向最大限度开窗,集热墙部分由窗、空气夹层和墙体三部分组成,利用阳光照射到外面有玻璃罩的深色蓄热墙体上,加热透明玻璃和厚墙外表面之间的夹层空气,通过热压作用使空气流入室内,向室内供热,同时墙体本身直接通过热传导向室内放热并储存部分能量,夜间墙体储存的能量释放到室内。 项目造价仅为每平方米2345元,考虑到多数材料需从平原地区运送至当地,经核算,此造价仅相当于平原地区约每平米1300元的建设成本。用地四周地势较为平坦,日照条件良好。 1.基于资源综合利用的采暖方式选择 由于项目面临多种限制条件和严苛的气候环境,相较于其他能源系统,被动式太阳能采暖系统具有投资低,维护简单,性价比高等优点。 对项目基地上的可再生能源进行分析,可以发现当地冬季太阳能资源非常丰富,可以满足建筑采暖的基本能源诉求。 2.前置BIM技术综合数值模拟技术应用——A/辅助总图与平面布局优化 在设计的全过程中,BIM模型与性能化数值模拟同步进行,交替优化。以明确的策略,理性的决策,实现了采暖功能的零碳排放。 综合各组模拟数据,可以得出结论,在高海拔高寒地区,在满足建筑基本使用功能情况下,有效的设置温度缓冲区可以明显的改善建筑室内的热舒适度。 理性的选择建筑主要出入口位置,并合理设计各个出入口在冬季的管理模式,从而尽量减少冬季冷风涌入室内,维持室内热环境的稳定。 4.前置BIM技术综合数值模拟技术应用——C/支持窗墙比优化 对建筑的南北两个立面采用差异的立面策略,北侧洞口尽量缩小,减少热量散失可能,南侧则尽可能加大采光面,增加室内的得热,同时创造性地提出了南窗热工性能昼夜可变设计,很好地解决了得热和保温的矛盾。 5.人文关怀与空间美学 北侧楼梯的采光窗色彩丰富,几何形式跳跃,改变了单走廊的封闭空间模式。给孩子们提供多层次的空间体验与趣味。北立面错落的洞口从不同角度将光线洒入室内,显得柔和而温暖。整体建筑色彩在白色中点缀藏族传统的红白蓝绿黄,体现当地的民族性。 6.可持续性对旧砖瓦回收循环使用 将拆除的建筑材料整理并用于场地景观设计。一方面也使得旧材料在新的场地留下了痕迹,获得新生,更环保低碳。另一方面也节约了建造成本。 竞赛其他获奖作品将于近期在“Active House”微信公众平台公布,敬请期待。























